酸雨环境下锈蚀RC剪力墙恢复力模型研究

郑山锁,郑 跃,董立国,江梦帆,张晓辉,可 亮

(西安建筑科技大学土木工程学院,西安 710055)

摘 要:出于酸雨环境下锈蚀RC剪力墙结构抗震性能评估的需要,该文提出了酸雨环境下RC剪力墙宏观恢复力模型,通过对6榀锈蚀RC剪力墙拟静力试验结果进行回归分析,得到了考虑轴压比与钢筋锈蚀率影响的锈蚀RC剪力墙骨架曲线特征点荷载与位移修正系数计算公式,以循环退化速率来表征构件强度和刚度的退化,确定了基于循环耗能的循环退化指数βi,并进一步建立了可考虑捏缩效应、屈服强度退化、峰值强度退化、卸载刚度退化及再加载刚度退化的锈蚀RC剪力墙滞回模型。与试验结果对比发现:采用该模拟方法得到的各试件的骨架曲线、滞回曲线以及试件破坏时的累积耗能均与试验结果吻合较好,表明所建立的锈蚀RC剪力墙宏观恢复力模型能较为准确的反应酸雨环境下RC剪力墙结构的力学性能及抗震性能,可为该类结构的抗震性能评估提供理论参考。

关键词:酸雨环境;RC剪力墙;锈蚀;滞回规则;恢复力模型

随着现代工业的飞速发展,煤和石油等化石燃料的消耗量不断增加,随之而来的硫氧化物和氮氧化物被大量排放在空气中,并溶于雨、雪形成pH<5.6的酸性降水,即酸雨。酸雨不仅危害人类健康,还将对建筑物产生严重的腐蚀作用[1]。我国华中酸雨区、西南酸雨区等酸雨重灾区的大量实际工程长期遭受酸雨危害,例如四川、湖南等地建筑物的“黑壳”现象相当明显,混凝土外层出现不同程度剥落,表面出现空洞和裂缝,结构内部钢筋出现锈蚀,严重威胁公众安全。

酸雨环境中等多种侵蚀离子引起的钢筋锈蚀是导致RC结构抗震性能劣化的主要原因[2]。近年来,部分学者对酸雨环境下锈蚀RC构件的抗震性能开展了研究,如:Guan等[3]通过8榀RC框架节点拟静力试验,研究了酸雨侵蚀对不同轴压比框架节点抗震性能的影响规律;郑山锁等[4]对7榀遭受酸雨侵蚀作用的RC框架梁进行了拟静力试验,分析了钢筋锈蚀率和剪跨比变化对锈蚀 RC框架梁抗震性能的影响;秦卿[5]以绣胀裂缝宽度为变化参数,研究了不同锈蚀程度低矮RC剪力墙的抗震性能劣化规律。以上研究结果表明:酸雨侵蚀将导致RC构件的强度、刚度、延性和耗能能力发生不同程度的退化,严重降低其抗震性能。然而,需要说明的是:上述研究大都采用的是试验研究方法,只是定性分析了酸雨侵蚀作用对结构构件力学性能及抗震性能的影响规律,而没有定量评估其影响程度,更没有对遭受酸雨侵蚀作用的RC构件恢复力模型进行研究。

恢复力模型是构件抗震性能的综合体现,是结构弹塑性分析的基础,合理的恢复力模型可较好地反映构件在地震作用下的受力及变形情况[6-7]。国内外学者已对往复循环荷载作用下结构构件的滞回性能和恢复力模型开展了广泛研究,提出了大量恢复力模型,如:Takeda等[8]提出了可较好模拟RC构件弯曲的修正 Takeda双线性模型;Ozcebe和Saatcioglu等[9]提出了专门针对构件剪切滞回性能的剪切恢复力模型;朱伯龙等[10]提出的包含下降段的四折线骨架曲线和考虑卸载刚度退化的恢复力模型;Curt等[11]基于耗能提出的能全面考虑构件从开始受荷至倒塌过程中所有重要性能退化的恢复力模型。然而应当指出的是,上述模型大多是基于完好构件试验研究建立的,而未考虑酸雨侵蚀对构件恢复力的影响,从而制约了酸雨环境下在役 RC剪力墙结构抗震性能评估的有效开展。

鉴于此,本文在试验研究的基础上,结合已有RC剪力墙恢复力模型研究成果,建立了酸雨环境下锈蚀RC剪力墙宏观恢复力模型,以期为酸雨环境下多龄期RC剪力墙结构的弹塑性地震反应分析提供理论支撑。

1 试验概况

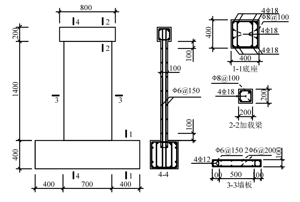
为研究酸雨环境下锈蚀 RC剪力墙的抗震性能,本文以钢筋锈蚀率和轴压比为主要变化参数,共设计了6榀RC剪力墙试件,高宽比均为2.14,墙体宽700 mm,墙厚100 mm,墙高1400 mm,混凝土强度等级均为C40,采用P.O 42.5R水泥配制,配合比为水泥∶中砂∶细石∶水=390∶885 ∶870 ∶120,实测混凝土立方体抗压强度为40.30 MPa,混凝土保护层厚度均采用 15 mm;横向分布钢筋为φ6@200,纵向分布钢筋为φ6@150,暗柱纵筋为 4φ12,暗柱箍筋 φ6@150,纵筋采用HRB335钢筋,其余配筋为HPB300钢筋。试件截面尺寸和配筋如图1所示,轴压比设计以及酸雨侵蚀喷淋循环次数如表1所示。

图1 试件截面尺寸及配筋图
Fig.1 Size and reinforcement of RC shear wall specimen

表1 RC剪力墙试件参数
Table 1 parameters of RC shear wall specimen

为模拟酸雨对RC剪力墙的侵蚀作用,试件制作完成并自然养护28 d后,将其放入人工气候试验室内进行环境侵蚀模拟试验(W1除外)。为加速试件的腐蚀速率并模拟干湿循环的实际环境,本文参考文献[12]采用间断喷淋腐蚀溶液并恒通CO2的腐蚀方案对RC剪力墙进行加速腐蚀,其中,腐蚀溶液的配制方案为:首先在普通自来水中添加浓度ρ=1.84 g/cm3的硫酸(H2SO4)溶液,直至腐蚀溶液中的硫酸根离子浓度达到 0.06 mol/L,以反映我国硫酸型酸雨的特点;继而在腐蚀溶液中添加浓度ρ=1.42 g/cm3的硝酸(HNO3)溶液,以调节腐蚀溶液的 pH值为 3.0。试件的具体腐蚀流程为:1)将实验室温度调整至 25±5℃,继而喷淋腐蚀溶液240 min;2)将实验室升温至65±5℃,以加速腐蚀介质的侵蚀速率;3)对试验室进行降温,直至温度降至25±5℃,继而开始下一腐蚀循环。单个腐蚀循环周期时长为 6 h,喷淋试验的同时,在实验室内恒通CO2以模拟实际环境中的混凝土碳化。加速腐蚀模拟试验及循环过程如图2所示。

图2 加速腐蚀模拟试验
Fig.2 Accelerate corrosion simulation test

腐蚀试验完成后,对各试件进行拟静力加载试验。本文采用悬臂梁式加载方案[13]对各试件进行拟静力加载,试件加载装置及位移计布置如图3所示,加载制度采用荷载-位移混合加载,即:首先在试件顶部施加水平往复荷载,采用荷载控制并以 20 kN为增量进行加载,每级荷载循环一次;加载至试件边缘暗柱底部纵向钢筋屈服后,以屈服位移为级差进行位移控制加载,每级往复循环3次,当剪力墙试件水平承载力下降至峰值荷载的 85%或破坏明显,丧失承载力时停止试验。

待低周反复试验完成后,对RC剪力墙内各钢筋锈蚀率进行测定,按照文献[12]所述方法,测得其钢筋锈蚀质量损失率见表2。

图3 加载装置
Fig.3 Test set-up

表2 钢筋锈蚀质量损失率
Table 2 Weight-loss rate of corroded reinforcement

2 试验结果及其分析

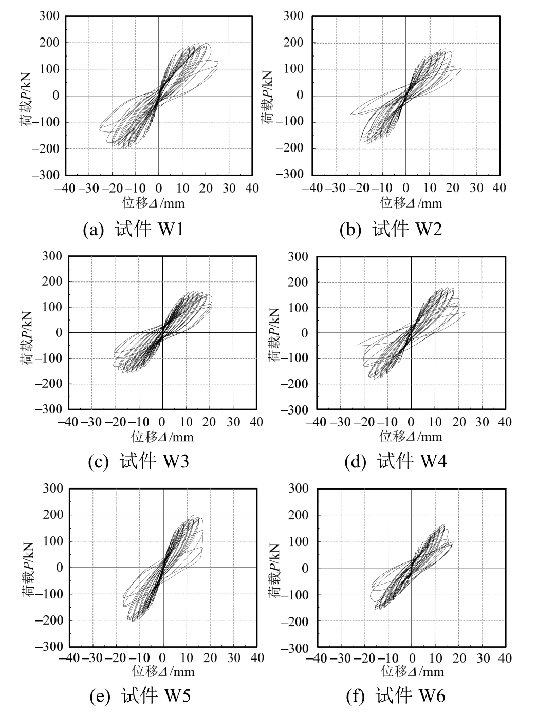
试件的墙顶荷载与位移(P-Δ)滞回曲线(如图4所示)具有以下共同特征:试件屈服前,其加卸载刚度基本无退化,卸载后几乎无残余变形,滞回曲线近似呈直线,滞回耗能较小;试件屈服后,随控制位移的增大,试件的加载和卸载刚度逐渐退化,卸载后残余变形增大,滞回环面积亦增大,形状近似呈梭形,有轻微的捏缩现象,表明试件具有良好的耗能能力;达到峰值荷载后,随着控制位移的增大,试件加载和卸载刚度退化更加明显,卸载后残余变形继续增大,滞回环呈反S形,试件耗能能力减小。

由于腐蚀程度及轴压比的不同,各试件的滞回特性又有以下特点试件 W1、W2、W4和试件W6的加速腐蚀循环次数分别为0、240、300和360,其滞回曲线分别如图4(a)、图4(b)、图4(d)和图4(f)所示。可以看出,随着试件腐蚀程度的增加,同级位移下滞回环面积逐渐减小,加卸载曲线斜率逐渐降低,表明试件强度和刚度逐渐退化,如试件 W6的屈服荷载比W1降低约20%,试件W4峰值荷载比W1降低约12%;同时,试件滞回曲线捏缩现象出现提前,捏缩程度逐渐加剧,说明试件滞回耗能能力不断降低,剪切变形比重逐渐增大,试件破坏形式由弯剪破坏逐渐转为剪弯破坏。其原因为:酸雨侵蚀作用造成了 RC剪力墙力学性能的严重劣化,钢筋有效截面面积减小,且与混凝土粘结性能降低。

试件W3、W4和试件W5的轴压比分别为0.1、0.2和0.3,其滞回曲线分别如图4(c)~图4(e)所示。可以看出,随着轴压比的增加,试件的开裂、屈服与峰值荷载及开裂位移呈增大趋势,如试件W5的峰值荷载比W3增大约24%,这是因为:轴压比在一定范围内增大,能有效抑制混凝土开裂及裂缝的扩展,试件的破坏形态属于大偏心受压破坏,其承载力将随轴压比的增大而增大。采用位移延性系数μ=Δu / Δy ,表征剪力墙试件的整体延性,Δy为屈服强度对应的位移值,Δu为骨架曲线水平力下降至最大水平力的 85%时所对应的位移值,则轴压比由0.1增至0.2时,其延性系数略微增加,但轴压比由0.2增至0.3时,试件W5(轴压比 0.3)的位移延性系数比试件 W4(轴压比 0.2)明显降低,其原因为:较高轴压比下,RC剪力墙试件受压侧混凝土易达到极限压应变,而受拉侧钢筋变形得不到充分发挥,抑制了塑性区长度的发展,使得试件延性降低。

图4 滞回曲线
Fig.4 Hysteric curves of specimens

3 恢复力模型建立

建立恢复力模型的方法主要有理论方法与试验拟合方法[14]等。对于未锈蚀RC剪力墙,通过理论方法建立其恢复力模型是可行的,然而,对于锈蚀RC剪力墙,由于其抗震性能的劣化受到钢筋截面面积减小、力学性能退化、钢筋与混凝土间粘结性能退化等多因素影响,通过理论方法建立其恢复力模型不现实,而试验拟合方法能够在保证一定精度条件下,综合考虑上述各种因素的影响。因此本文首先通过理论方法建立未锈蚀RC剪力墙试件的恢复力模型,计算公式见表3,进而通过锈蚀 RC剪力墙试验结果,拟合得到综合考虑钢筋锈蚀率及轴压比影响的RC剪力墙恢复力模型骨架曲线特征点修正系数计算公式,并据此对未锈蚀试件的骨架曲线进行修正,建立锈蚀RC剪力墙恢复力模型。

3.1 骨架曲线的建立

骨架曲线为力-变形滞回曲线的外包络线。由RC剪力墙试验数据可知,锈蚀试件的破坏属于弯剪或剪弯型,滞回曲线下降段相对陡峭,破坏较为突然,故将其骨架曲线简化为有下降段的四折线模型,如图5所示。试件骨架曲线需确定的特征参数有开裂点(ΔcrPcr)、屈服点(ΔyPy)、峰值点(ΔmPm)和极限点(ΔuPu),其中极限荷载取峰值荷载的85%。未锈蚀试件骨架曲线各特征点按表3所给公式进行计算。

锈蚀试件骨架曲线参数标定:综合考虑钢筋锈蚀率ηs以及轴压比n对RC剪力墙试件承载能力的影响,分别定义荷载折减函数 f(ηs,n)和位移折减函数g(ηs,n),则锈蚀RC剪力墙试件的骨架曲线特征点参数计算公式为:

式中,P0Δ0为未锈蚀试件骨架曲线特征点荷载与位移计算值。

图5 四折线骨架曲线
Fig.5 Four fold line skeleton curve

表3 未锈蚀RC剪力墙骨架曲线特征点计算公式
Table 3 Summary of calculation formulas of characteristic points of intact RC shear walls

特征点 参数 计算公式参数说明开裂点Δcr 3 cr cr cw cw 1.7 3 H H P EI GA Δ=■ ■+μ■■■■H为剪力墙加载点距离基座的距离;Ec为混凝土的弹性模量;Iw为剪力墙截面的惯性矩;μ为剪应力分布不均匀系数,对于矩形截面取μ=1.2;Gc为混凝土的剪切模量,取Gc=0.4Ec;Aw为剪力墙横截面面积Pcr[15]images/BZ_91_791_1622_841_1664.pngimages/BZ_91_926_1649_977_1695.pngcr 4 P =images/BZ_91_1277_1575_1325_1616.png 为混凝土抗压强度;Aw为剪力墙横截面积;Acv为I形或T形截面剪力墙腹板的横截面积,对矩形截面剪力墙,取Aw=Acv;N为轴向压力屈服点Δy[16]2 y yw 1 3fh Δ= φy为屈服曲率;hw/mm为剪力墙试件有效高度Py[17]m y V 2.05 0.31 0.4 0.34 P P nλ λ= - + - n为轴压比;λv为剪力墙构件的边缘配箍特征值;λ为剪力墙构件的剪跨比峰值点Δm[17]m y V a(4.25 2.5 7.19 0.27 11.39 1)n Δ Δ λ λ γ= - + - - + λ为RC剪力墙剪跨比;hw0为RC剪力墙有效高度;n为轴压比;γa为RC剪力墙边缘约束区面积与总截面面积的比值Pm[18]wccc w c w c c w c w w0 w yw s m y s w s c wc cc w w w0 w yw s y s w s c■[0.5 ( )0.5 ( )( )0.5 ( 1.5)(1.5 )2 (0.5 )]/[0.5 ( )0.5 ( 1.5)(1.5 )2 (0.5 )]/blf h l b x lfh l x b h x f x P fA h H x l blxf h x b h x f x fA h H x l α ρ α α ρ α- + - - - +■-- +■■=-α >■■- + - - +■■-α <■, ,bw为剪力墙截面宽度;lc为端部约束区长度;fyw为竖向分布钢筋屈服强度;ρw为竖向分布筋配筋率;fy、As为端部约束区纵筋屈服强度和全部纵筋截面面积;x为截面受压区高度;fc、fcc分别为未约束和约束混凝土抗压强度极限点 Δu[19]3 u u m u ue p p cw c w s 1 1.2 3 2 PH PH P l l l EI GA K Δ Φ ■ ■= + + + +■ ■■■ uΦ为塑性铰区域的极限曲率;le为RC剪力墙弹性区域高度;lp为RC剪力墙塑性铰区域高度;Ks为塑性铰区域抗剪刚度Pu u m 0.85 P= P

将锈蚀RC剪力墙试件各特征点的荷载与位移试验值分别除以未锈蚀试件相应特征点的荷载与位移得到相应的修正系数。在相同轴压比与相同锈蚀程度情况下,分别以钢筋锈蚀率ηs及轴压比n为横坐标,以该修正系数为纵坐标,得到各特征点的荷载修正系数与位移修正系数随钢筋锈蚀率 ηs和轴压比n的变化曲线,如图6、图7所示。考虑到RC剪力墙试件的开裂与混凝土强度及试件尺寸相关性较大,钢筋锈蚀对其影响甚微,因此,不考虑锈蚀试件开裂点荷载与位移的折减。

图6 各特征点荷载/位移修正系数随钢筋锈蚀率的变化规律
Fig.6 The variation of load/displacement correction ratio of each feature point with reinforcement corrosion rate

图7 各特征点荷载/位移修正系数随轴压比的变化规律
Fig.7 The variation of load/displacement correction ratio of each feature point with axial compression ratio

由图6、图7可以看出:轴压比相同时,随着钢筋锈蚀率的增大,锈蚀RC剪力墙各特征点的荷载与位移修正系数均不断减小,且近似呈现线性变化趋势;钢筋锈蚀程度相近时,随着轴压比的增大,屈服点、峰值点和极限点的荷载修正系数呈明显上升趋势,而峰值点和极限点的位移修正系数变化趋势则无明显规律。鉴于此,并参考已有的研究成果[20-22],本文将各特征点的荷载修正系数 f(ηs,n)与位移修正系数g(ηs,n)假设为关于轴压比 n的二次函数和钢筋锈蚀率ηs的一次函数形式,并考虑边界条件,得到如下形式:

式中:a1a2b1b2c1c2d1d2e1e2均为拟合参数。

本文通过1stopt软件对各特征点荷载与位移修正系数进行多参数拟合,得到锈蚀RC剪力墙宏观恢复力模型骨架曲线中各特征点修正系数计算公式,如表4所示。进而根据表4中的公式,计算遭受酸雨侵蚀后RC剪力墙试件骨架曲线各特征点的荷载值与位移值,并与试验结果进行对比,对比结果如表5、表6所示。

由表5、表6所示的对比结果可以看出,骨架曲线各特征点荷载、位移模拟值与试验值较为吻合,说明本文考虑钢筋锈蚀率与轴压比对锈蚀试件骨架曲线参数的影响分析是合理的。为定量描述骨架曲线各特征点模拟值与试验值的接近程度,假定荷载、位移回归方程为 Y=X,对荷载与位移分别进行拟合优度分析,得到其可决系数r2(0<r2<1)分别为0.96615和0.97005,表明本文建立的锈蚀RC剪力墙骨架曲线特征点参数计算方法具有一定的准确性。

表4 骨架曲线各特征点修正系数计算公式
Table 4 Formula of correction coefficient of characteristic points of skeleton curve

表5 骨架曲线各特征点荷载模拟值与试验值对比
Table 5 The comparison of the load between simulation and test at feature points of Skeleton Curve

表6 骨架曲线特征点位移模拟值与试验值对比
Table 6 The comparison of the displacement between simulation and test at feature points of Skeleton Curve

3.2 滞回模型建立

由试验结果可知,锈蚀RC剪力墙试件屈服后强度与刚度退化均快于未锈蚀试件,且“捏缩”效应更为明显。本文在现有滞回规则[11]基础上,考虑循环退化,建立了锈蚀RC剪力墙恢复力模型,其循环退化模式包括:屈服强度与峰值强度退化、卸载刚度退化、再加载刚度退化等,各循环退化示意如图8(a)~图8(c)所示。

滞回模型建立思路为:根据试验结果得到以滞回耗能为基础的循环退化指数 βi(0<βi≤1),以反映锈蚀RC剪力墙试件力学性能的退化;试件屈服后,在往复荷载作用下会出现屈服强度与峰值强度降低的现象,以及卸载时和再加载时会出现卸载刚度及再加载刚度退化现象,根据循环退化指数可计算屈服强度与峰值强度退化,以及卸载刚度退化和再加载刚度退化;根据再加载刚度退化以及峰值强度退化,修正滞回曲线的指向点,根据上一循环最大残余变形、峰值荷载以及捏缩效应参数确定捏缩点位置。滞回模型示意图如图9所示。循环退化指数的计算式[23]为:

式中:c为循环退化速率(1≤c≤2);Ei为第i次循环加载时试件的耗能;为第i次循环加载之前试件的累积耗能;Et为试件的理论耗能能力,其计算公式[24]为:

图8 循环退化规则示意图
Fig.8 Cycle degeneration rule diagram

图9 滞回规则示意图
Fig.9 Hysteresis rule diagram

式中:PyΔy分别为屈服荷载和屈服位移;Iu为结构破坏时对应的极限功比指数,用以表示剪力墙在加载过程中吸收能量的大小。定义功比指数损伤变量函数为h(ηs,n),I0为未锈蚀RC剪力墙试件极限功比指数,则酸雨侵蚀RC剪力墙的极限功比指数计算公式为:

设定其中mηsmn分别为钢筋质量损失率ηs与轴压比n单因素下锈蚀试件的极限功比指数修正系数。根据试验数据,将锈蚀RC剪力墙的极限功比指数进行归一化处理,采用1stopt软件拟合得到极限功比指数修正系数mηsmn的计算公式:

RC剪力墙试件在加载过程中,由于裂缝开展以及黏结滑移问题,试件的滞回曲线出现“捏缩”现象,为反映该现象,在试件滞回模型中引入捏缩规则。捏缩规则确定方法[22]如下:将再加载曲线定义为两折线型,第一段折线刚度为Krel,a,第二段折线刚度为Krel,b;再加载路径指向捏缩点,通过捏缩点后,指向上一循环的最大位移点;捏缩点的位置可由上一循环的最大残余变形、峰值荷载以及捏缩效应参数κDκF确定,其中,参数κDκF分别用于确定捏缩点的水平位移和最大荷载,捏缩点的确定如图10所示。

图10 捏缩规则示意图[22]
Fig.10 Pinch rule diagram

3.3 恢复力模型的验证

为了验证所提出滞回模型的合理性,选取3榀RC剪力墙试件,利用上述滞回模型计算方法绘制其滞回曲线,并与试验滞回曲线进行对比,结果如图11所示。可以看出,所建立的酸雨侵蚀作用下锈蚀RC剪力墙恢复力模型具有较高精度,模拟滞回曲线与试验滞回曲线在承载力、变形能力、刚度退化和强度退化等方面均符合较好。但由于钢筋锈蚀不均匀、试件顶部承受偏心受压作用以及初始加载方向等原因的影响导致试验滞回曲线不对称,而模拟滞回曲线在正、反两个方向是对称的,因此试验滞回曲线与模拟滞回曲线出现误差,但误差在允许范围以内。同时,试验滞回曲线与模拟滞回曲线在下降段误差相对较大,这是因为随着控制位移的增加,锈蚀试件损伤逐渐累积,循环退化指数增大,导致模拟滞回曲线位移较试验滞回曲线位移有所增加,但亦在允许范围内。

3.4 滞回耗能验证

为了进一步验证本文提出的锈蚀RC剪力墙恢复力模型的准确性及合理性,将模拟滞回耗能与试验滞回耗能进行对比分析。以名义滞回耗能代表试件的耗能能力,计算公式如下:

式中:NHE为名义滞回耗能;为试件的累计滞回耗能;PyΔy分别为试件屈服点的荷载和位移。任意挑选3榀剪力墙试件计算其名义滞回耗能与循环加载次数的关系曲线,结果如图12所示。模拟滞回曲线的滞回耗能与试验结果误差大小是判断恢复力模型优劣的重要条件。各试件最终破坏时的耗能值由于滞回模型再加载曲线的线性特征,其结果出现一定的离散性,图13分析了各试件耗能模拟值与试验值的误差,发现误差基本不超过20%。综上,本文建立的锈蚀RC剪力墙恢复力模型可用于实际结构。

图11 模拟滞回曲线与试验滞回曲线对比
Fig.11 The comparison of Hysteresis curve between simulation and test

图12 滞回耗能对比
Fig.12 Comparison of hysteretic energy dissipation

图13 滞回耗能模拟值与试验值的误差分析
Fig.13 Error analysis of simulated and experimental hysteretic energy dissipation

4 结论

出于酸雨环境下RC剪力墙结构抗震性能评估的需要,本文对酸雨侵蚀RC剪力墙恢复力模型进行了深入研究,结论如下:

(1)当轴压比相同时,随着酸雨侵蚀程度的增加,RC剪力墙的承载力、刚度、耗能能力等呈降低的趋势;酸雨侵蚀程度相同时,随着轴压比的增加,试件承载力呈增大趋势,刚度退化速率不断加快,而变形能力和耗能能力则逐渐减小。

(2)通过对试验数据的分析拟合,建立了锈蚀RC剪力墙骨架曲线特征点荷载与位移修正系数计算式。基于已有RC剪力墙恢复力模型研究成果,引入循环退化指数βi,提出了适用于酸雨侵蚀环境下锈蚀RC剪力墙试件的滞回规则,建立了考虑酸雨侵蚀作用的RC剪力墙恢复力模型。

(3)建立的锈蚀 RC剪力墙恢复力模型计算结果与试验结果吻合较好,说明该恢复力模型能够较好地反映酸雨侵蚀作用下RC剪力墙的力学与抗震性能,可为酸雨环境下在役RC剪力墙结构的抗震性能研究提供理论支撑。

参考文献:

[1]张新民,柴发合,王淑兰,等.中国酸雨研究现状[J].环境科学研究,2010,23(5): 527-532.Zhang Xinmin,Chai Fahe,Wang Shulan,et al.Research progress of acid precipitation in China [J].Research of Environmental Sciences,2010,23(5): 527-532.(in Chinese)

[2]牛荻涛.混凝土结构耐久性与寿命预测[M].北京: 科学出版社,2003: 47-50.Niu Ditao.Concrete structure durability and life prediction [M].Beijing: Science Press,2003: 47-50.(in Chinese)

[3]Guan Y,Zheng S.Seismic behaviors of RC frame beam-column joints under acid rain circle: A pilot experimental study [J].Journal of Earthquake Engineering,2017,21(6): 1-19.

[4]郑山锁,左河山,刘巍,等.一般大气环境下低剪跨比RC框架梁抗震性能试验研究[J].工程力学,2017,34(7): 186-194.Zheng Shansuo,Zuo Heshan,Liu Wei,et al.Experimental research on aseismic behaviors of RC frame beams of low shear span ration in general atmospheric environment [J].Engineering Mechanics,2017,34(7): 186-194.(in Chinese)

[5]秦卿.人工气候环境下锈蚀低矮 RC剪力墙抗震性能试验研究[D].西安: 西安建筑科技大学,2014.Qin Qing.Experimental studies on seismic behavior of corroded squart RC shear walls under artificial climate environment [D].Xi’an: Xi'an University of Architecture and Technology,2014.(in Chinese)

[6]张艳青,贡金鑫,韩石.钢筋混凝土杆件恢复力模型综述(I)[J].建筑结构,2017,(9): 65-70.Zhang Yanqing,Gong Jinxin,Han Shi.Reviews of restoring force model for reinforced concrete members(I)[J].Building Structure,2017(9): 65-70.(in Chinese)

[7]马凯泽,梁兴文,李响,等.型钢混凝土剪力墙恢复力模型研究[J].工程力学,2011,28(8): 119-132.Ma Kaize,Liang Xingwen,Li Xiang,et al.Restoring force model of steel reinforced concrete shear walls [J].Engineering Mechanics,2011,28(8): 119-132.(in Chinese)

[8]Takeda T,Sozen M A,Neilsen N N.Reinforced concrete response to simulated earthquakes [J].Journal of the Structural Division,1970,96(12): 2557-2573.

[9]Ozcebe G,Saatcioglu M.Hysteretic shear model for reinforced concrete members [J].Journal of Structural Engineering,1989,115(1): 132-148.

[10]朱伯龙,张琨联.矩形及环形截面压弯构件恢复力特性的研究[J].同济大学学报,1981,26(2): 4-13.Zhu Bolong,Zhang Kunlian.A study of restoring force characteristic of reinforced concrete flexural members with a constant axial load [J].Journal of Tongji University,1981,26(2): 4-13.(in Chinese)

[11]Curt B.Haselton,Abbie B,Liel,et al.Calibration of model to simulate response of reinforced concrete beam-columns to collapse [J].ACI Structural Journal,2016,113(6): 1141-1152.

[12]郑山锁,张艺欣,黄鹰歌,等.酸雨环境下钢筋混凝土框架梁抗震性能试验研究[J].建筑结构学报,2017,38(9): 20-27.Zheng Shansuo,Zhang Yixin,Huang Yingge,et al.Experimental study on seismic behaviors of reinforced concrete frame beams in simulated acid environment [J].Journal of Building Structures,2017,38(9): 20-27.(in Chinese)

[13]JGJ 101-1996,建筑抗震试验方法规程[S].北京: 中国建筑工业出版社,1996.JGJ 101-1996,Specificating of testing methods for earthquake resistant building [S].Beijing: China Architecture & Building Press,1996.(in Chinese)

[14]姚谦峰,常鹏.工程结构抗震分析[M].北京: 北京交通大学出版社,2012: 180-183.Yao Qianfeng,Chang Peng.Seismic analysis of engineering structure [M].Beijing: Beijing Jiaotong University Press,2012: 180-183.(in Chinese)

[15]Wallace J W.Modelling issues for tall reinforced concrete core wall buildings [J].The Structural Design of Tall and Special Buildings,2007,16(5): 615-632.

[16]Tjhin T N,Aschheim M A,Wallace J W.Yield displacement estimates for displacement-based seismic design of ductile reinforced concrete structural wall buildings [C]// 13th World Conference on Earthquake Engineering,Vancouver,2004: 1034-1035.

[17]张松,吕西林,章红梅.钢筋混凝土剪力墙构件极限位移的计算方法及试验研究[J].土木工程学报,2009,42(4): 10-16.Zhang Song,Lü Xilin,Zhang Hongmei,et al.Experimental and analytical studies on the ultimate displacement of RC shear walls [J].China Civil Engineering Journal,2009,42(4): 10-16.(in Chinese)

[18]梁兴文.结构抗震性能设计理论与方法[M].北京: 科学出版社,2011: 220-225.Liang Xingwen.Theory and method of Structural seismic performance design [M].Beijing: Science Press,2011:220-225.(in Chinese)

[19]Priestley M J N.Aspect of drift and ductility capacity of rectangular cantilever structural walls [J].Bulletin of New Zealand Society for Earthquake Engineering,1998,31(2): 73-85.

[20]王斌,郑山锁,汪锋,等.考虑冻融损伤的钢筋混凝土框架节点恢复力模型研究[J].工程力学,2017,34(5):105-115.Wang Bin,Zheng Shansuo,Wang Feng,et al.Restoring force model of freeze-thaw damaged RC frame joints [J].Engineering Mechanics,2017,34(5): 105-115.(in Chinese)

[21]郑山锁,李强强,秦卿,等.冻融损伤低矮钢筋混凝土剪力墙恢复力模型研究[J].建筑结构学报,2018,39(3): 111-119.Zheng Shansuo,Li Qiangqiang,Qin Qing,et al.Restoring force model of freezing-thawing damaged squat reinforced concrete shear walls [J].Journal of Building Structures,2018,39(3): 111-119.(in Chinese)

[22]曹琛,郑山锁,胡卫兵,等.近海大气环境下锈蚀 RC框架梁恢复力模型研究[J].工程力学,2019,36(4):125-134.Cao Chen,Zheng Shansuo,Hu Weibing,et al.A restoring force model of corroded reinforced concrete frame beams in offshore atmospheric environment[J].Engineering Mechanics,2019,36(4): 125-134.(in Chinese)

[23]Rahnama M,Krawinkler H.Effects of soft soil and hysteresis model on seismic demands [D].John A.Blume Earthquake Engineering Center Report No.108.Department of CEE,Stanford University,1993.

[24]李磊,郑山锁,王斌,等.型钢高强混凝土框架的循环退化效应[J].工程力学,2010,27(11): 81-88.Li Lei,Zheng Shansuo,Wang Bin,et al.Cyclic deterioration effect of the steel reinforced high performance concrete frames [J].Engineering Mechanics,2010,27(11): 81-88.(in Chinese)

A RESTORING FORCE MODEL OF RC SHEAR WALLS IN A SIMULATED ACID ENVIRONMENT

ZHENG Shan-suo ,ZHENG Yue ,DONG Li-guo ,JIANG Meng-fan ,ZHANG Xiao-hui ,KE Liang
(Collage of Civil Engineering,Xi’an University of Architecture and Technology,Xi’an,Shanxi 710055,China)

Abstract:A macroscopic restoring force model of corroded RC shear walls was proposed to evaluate the seismic performance of corroded RC shear walls under acid rain.The load and displacement correction factor formula of critical points on the corroded RC shear wall skeleton curve was developed.The formula was obtained by applying the regression analysis of test data on six corroded RC shear walls,considering the influence of the axial compression ratio and steel corrosion rate.The degradation of the strength and stiffness of the specimens were characterized by a cyclic degradation index βi based on cycle energy consumption.The corroded RC shear wall hysteresis model was established considering the pinching effect,yield strength degradation,peak strength degradation,unloading stiffness degradation and reloading stiffness degradation.By comparing the simulation results with the experimental data,it can be found that all the skeleton curves,the hysteresis curve and the energy dissipation of the specimens obtained by the proposed method were in good agreement with the experimental data.Consequently,the macroscopic restoring force model for corroded RC shear walls established in this study can accurately reflect the mechanical and seismic performance of corroded RC shear walls,indicating its adaptiveness for estimating the seismic performance of corroded RC shear wall structure under acid rain.

Key words:acid rain environment; RC shear wall; corrosion; hysteretic behavior; restoring force model

中图分类号:TU375;TU398.2

文献标志码:A

doi:10.6052/j.issn.1000-4750.2018.07.0416

文章编号:1000-4750(2019)10-0075-11

收稿日期:2018-07-27;修改日期:2018-10-25

基金项目:国家科技支撑计划项目(2013BAJ08B03);国家自然科学基金项目(51678475);陕西省重点研发计划项目(2017ZDXM-SF-093);陕西省教育厅产业化项目(2018JC020)

通讯作者:郑 跃(1993―),男,河北人,博士生,主要从事结构工程与工程抗震研究(E-mail:zhengyuetime@163.com).

作者简介:

郑山锁(1960―),男,陕西人,教授,博士后,博导,主要从事结构工程与工程抗震研究(E-mail:zhengshansuo@263.net);

董立国(1990―),男,山西人,博士生,从事结构工程与工程抗震研究(E-mail:dlg_15@163.com);

江梦帆(1994―),女,河北人,硕士生,主要从事结构工程与工程抗震研究(E-mail:jmf602067866@163.com);

张晓辉(1989―),男,陕西人,博士生,主要从事工程抗震和结构易损性研究(E-mail:2250232594@qq.com);

可 亮(1994―),男,湖北人,硕士生,主要从事建筑结构抗震研究(E-mail:619385462@qq.com).